元美容室の店舗付き住宅!広々とした12DK(物件番号513)
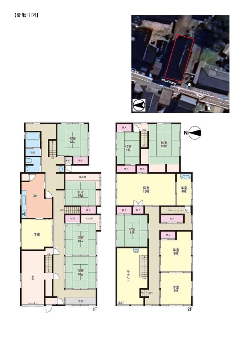
閑静な住宅街に建つ築46年の店舗付き住宅です。部屋数は、1階に5部屋、2階に7部屋の12DK+店舗です。2階に元美容室のテナント部分があります。
キッチンは、IHクッキングヒーター付きです。また、広々とした延床面積281.84㎡の居室空間に加え、十分なサイズでリラックスできる広さ1坪以上の浴室があります。
車庫に車を1台駐車することができます。前面道路には消雪パイプが設置されています。

| 物件番号 | 513 | ||
|---|---|---|---|
| 売買・賃貸区分 | 売買 | 希望価格 |
260万円 |
| 建築年 | 昭和54年 | 敷地面積 | 530.51㎡ |
| 構造 | 木造 | 延床面積 |
281.84㎡ |
| 補修の要否 | 多少 | 利用状況 |
空き家 |
| 物件詳細情報 | 空き家情報バンク登録カード(PDF)・ 間取り図 | ||
| 仲介業者 (間接型希望の場合) |
株式会社リボン 0766-57-0808 |
||
| 特記事項 |
・学校区は、庄東小学校、般若中学校です。 |
||
内観写真
|
|
浴室 |
|---|---|
洗面台 |
|
キッチン |
|
和室 |
廊下 |
|
|
間取り図

関連資料
砺波市物件513(PDF)
玄関
浴室
洗面台
トイレ
キッチン
和室
和室
廊下
和室テナント